LEBENSFORMEN











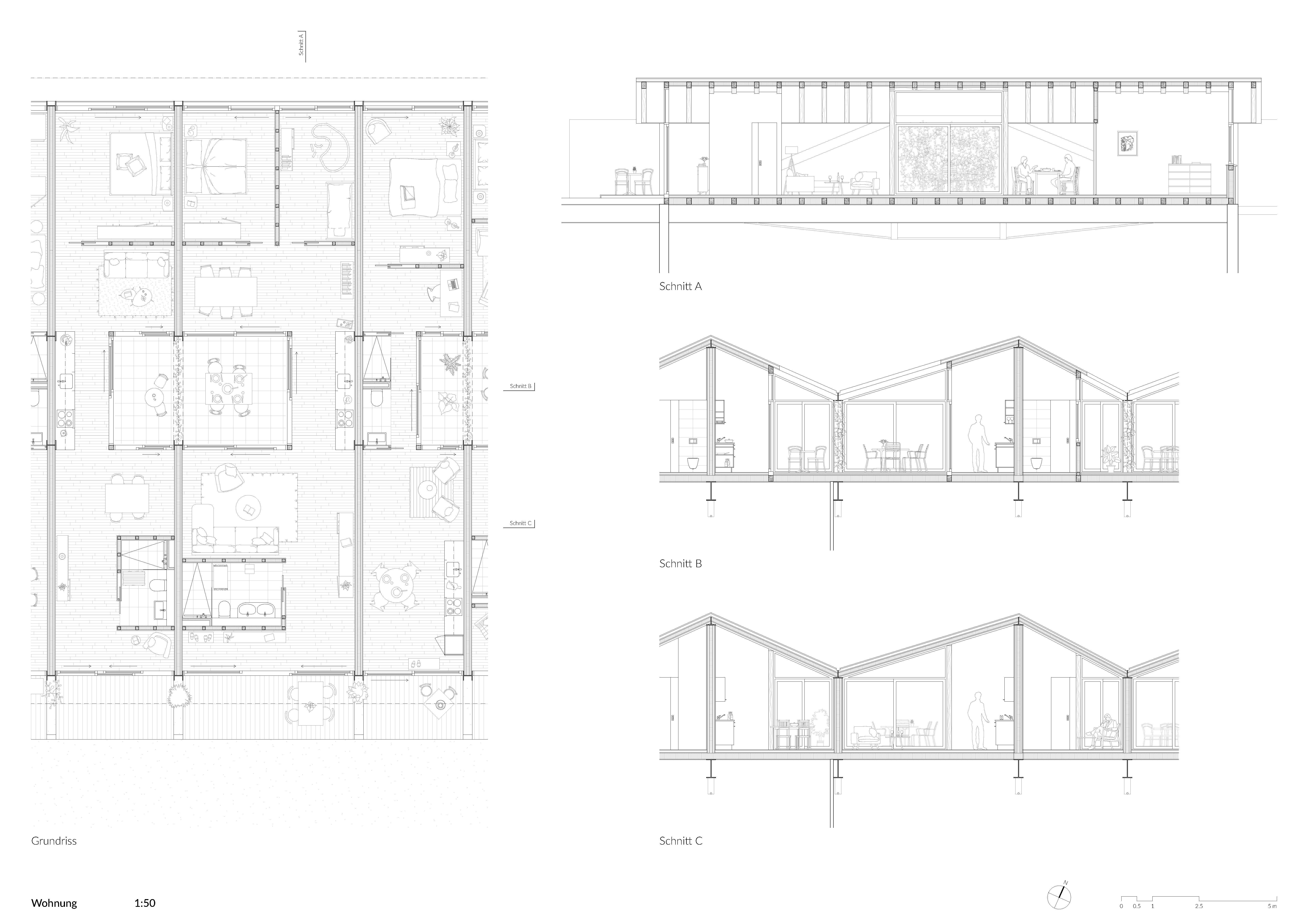
Auf einem Gewerbeareal in Giswil entsteht zusätzlich neuen Wohnraum, der die bestehende gewerbliche Nutzung nicht beeinträchtigt. Die grosszügige Dachfläche der Fabrikhalle bietet grosses Potenzial, um ungenutzte Flächen für die Wohnnutzung zu erschliessen und diese genügend von der Gewerbenutzung zu trennen. Ein zentrales Element ist die Erweiterung der Tragstruktur, die für die Aufstockung notwendig ist. Durch die Verstärkung orientiert sich die Einteilung der neuen Wohneinheiten am Raster der bestehenden Tragstruktur. Es entstehen lange, schmale Wohnungen. Lichthöfe brechen die Tiefe und bringen Tageslicht bis ins Innere der Einheiten. Mit mehr natürlicher Belichtung sorgen sie für mehr Aufenthaltsqualität. Unterschiedliche Wohnungstypologien bieten vielseitige Nutzungsmöglichkeiten und sprechen verschiedenste Zielgruppen an. Die bestehenden Wohnungen werden in das Gesamtkonzept integriert und für die erweiterte Nutzung auf dem Dach angepasst. Neue Begrünungen, Aufenthalts- und Spielbereiche auf dem Dach fördern Austausch, stärken die Gemeinschaft und schaffen ein angenehmes Umfeld.